•  

     

    Home

    Grounds Maintenance

    Landscaping

    Irrigation

    Design & Consultation

    Veggie Starts Sale!

    Call 505.986.0584

    Contact

    Comments

    Bosque Bio

    Full Site

  • Design & Consultation >

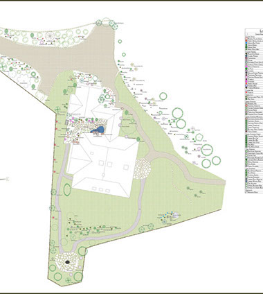
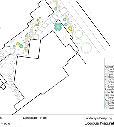
    • Landscape Design
    • Detailed Estimates
    • On Site Consultation